Site Plan
Frist Floor
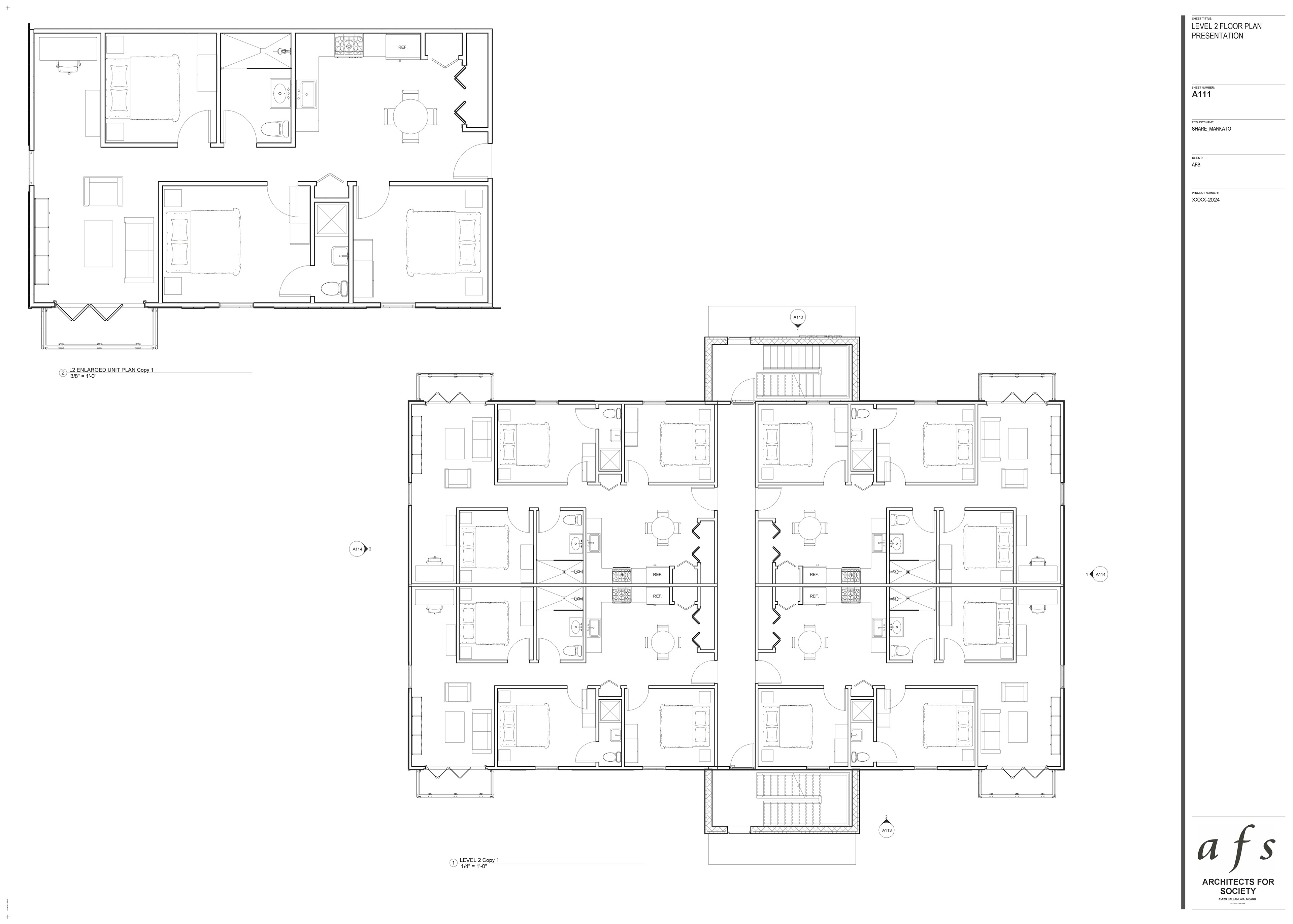
Second Floor
Third Floor
Elevations
The SHARE Project in Mankato, MN, near the Minnesota State University campus, is a sustainable workforce housing initiative featuring twelve 960-square-foot, 3-bedroom apartments on a 0.5-acre site. Designed with the philosophy of "Elevated Living, Accessible to All," the project emphasizes contemporary style, optimized family-oriented floor plans, and sustainability. Key features include low-carbon construction materials, passive cooling techniques, Structural Insulated Panel (SIP) walls and roofs for superior thermal performance, and energy-efficient systems such as high-performance insulation, low-flow plumbing fixtures, and efficient HVAC systems. Delivered under a Design/Build contract by AFS and Patrick Dorn Construction, this cost-effective approach ensures collaboration throughout the process. Solar panel installation will be explored, aligning with the project’s commitment to sustainability and energy efficiency.